鋁單板施工工藝-專業指導
鋁單板幕墻施工工藝對新接觸鋁單板安裝的人可能覺得復雜,但按照下面的安裝說明,就可以很清楚的知道鋁單板安裝的一些要注意細節,可以有效的加快鋁單板安裝進程。作為建筑裝飾材料,鋁單板幕墻決定著建筑的外觀視覺效果,如果鋁單板幕墻施工工藝不到位,出現板面不平整情況,嚴重的存在安全隱患。

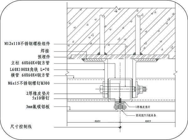
一、鋁單板幕墻施工所用工具:
 無齒鋸片切割機、手電鉆、沖擊電鉆、射釘槍、各種規格的鉆花、扳手、螺絲刀、手錘、墨線、線垂、尼龍線、鋼卷尺、電焊機、氧切設備、受動吸盤、電動吊藍、注膠槍、風動拉鉚槍、安全帶等。
二、鋁單板幕墻施工工藝流程:
 放線→固定骨架的連接件→固定骨架→安裝鋁單板→收口構造處理→檢驗
 三、鋁單板施工工藝注意事項:
 1、鋁單板幕墻質量、顏色、造型、線條應符合設計要求,并應有產品合格證。
 2、幕墻墻體骨架如采用型鋼龍骨時,其規格、形狀應符合設計要求,并應進行除銹、防銹處理。
 3、鋁單板幕墻安裝,當設計無要求時,宜采用抽芯鋁鉚釘,中間必須墊橡膠圈。抽芯鉚釘間距以控制在100-150mm內。
 (一)放線
骨架固定在主體結構上,放線前檢查主體結構的質量。
 (二)固定骨架的連接件
 在主體結構的柱上焊接連接件固定骨架。
 (三)固定骨架
 骨架預先進行防腐處理。安裝骨架位置準確,結合牢固。安裝完檢查中心線、表面標高等。為了保證板的安裝精度,宜用經緯儀對橫梁豎框桿件進行貫通。對變形縫、沉降縫、變截面處等進行妥善處理,使其滿足使用要求。
 (四)安裝鋁單板
 1、板與板之間的間隙要進行內部處理,使其平整、光滑。
 2、鋁單板安裝完畢,在易于被污染的部位,用塑料薄膜或其他材料覆蓋保護。
鋁單板幕墻安裝的效果直接影響整個設計的效果,所以選取優質八和建材鋁單板品牌產品時,也要選擇優秀的安裝隊伍,以保證建筑裝飾的完美。
最新產品
同類文章排行
- 不銹鋼屏風的風格和表面處理方式
 - 預輥涂鋁單板的優點有哪些?
 - 預輥涂鋁單板和粉末噴涂鋁單板的區別
 - 什么是滾涂加工工藝?滾涂鋁板的優勢有哪些?
 - 什么是木紋轉印工藝,木紋轉印工藝的流程和優點
 - 為何氟碳鋁單板常被運用到戶外,聚酯粉/漆鋁單板常被運用到室內?
 - 鋁格柵和鋁方通有區別呢?
 - 弧形包柱鋁單板留縫密拼安裝方法
 - 鋁方通吊頂龍骨如何安裝施工
 - 金屬建筑幕墻材料鋁蜂窩板幕墻和鋁單板幕墻的優點
 
最新資訊文章
您的瀏覽歷史
            





