甲級寫字樓鋁扣板天花安裝方式
八和建材鋁扣板廠家專注于甲級寫字樓鋁扣板天花吊頂材料的生產,那鋁扣板天花是如何安裝的呢?下面跟隨八和建材鋁扣板廠家的小編來了解一下吧。
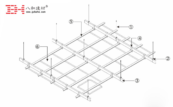
甲級寫字樓鋁扣板的天花安裝將就的是每一點、線、面的平整和垂直,以及板與板之間的縫隙的大小,這就要求我們的安裝師傅在安裝鋁扣板時一定要格外的小心,而且必須有過硬的技術水平,否則很難達到甲級寫字樓鋁扣板天花的驗收標準。在安裝鋁扣板的時候應該注意以下幾點:首先,根據同一水平高度裝好鋁修邊角。其次,按合適的間距吊裝好8厘吊桿和50主骨。再次,把預裝在三角龍骨上的吊件連同三角龍骨與主龍骨成垂直方向按板材間距連接好,然后調整水平。最后,將方形鋁扣板的兩條邊平行壓入三角龍骨縫中,每排扣完后要調整一次確保板面平整,板縫垂直。
八和建材鋁扣板廠家有著專業的生產技術團隊,可以保證鋁扣板在甲級寫字樓天花吊頂裝飾的完美展現,歡迎來電咨詢。
八和建材 http://www.qfbaj.cn
下一篇:沖孔鋁單板 根據圖紙精準加工定制上一篇:為您詳細解答U型鋁方通安裝方式
最新產品
同類文章排行
- 裝配式覆膜鋼板的八大優點
- 覆膜鋼板詳細介紹,什么是覆膜鋼板
- 覆膜鋼板介紹
- 仿石紋鋁單板、陶瓷涂料鋁單板的產品性能
- 八和建材仿石紋鋁單板、陶瓷涂料鋁單板介紹
- 金屬裝飾面板的特點,鋁單板的優點
- 鋁單板的生產工藝流程
- 木紋鋁單板木紋轉印工作原理
- 鋁單板的構造及其優異的性能介紹
- 氟碳鋁單板幕墻天花的優點
最新資訊文章
您的瀏覽歷史







